- Accueil
- Vente
- Alpes maritimes
- Tourrettes sur loup
- RARE OPPORTUNITE à TOURRETTES SUR LOUP ! LOTISSEMENT DE 6 LOTS VIABILISES.
Référence : 1343
Calculette
Partager
RARE OPPORTUNITE à TOURRETTES SUR LOUP ! LOTISSEMENT DE 6 LOTS VIABILISES.
Description de l'offre
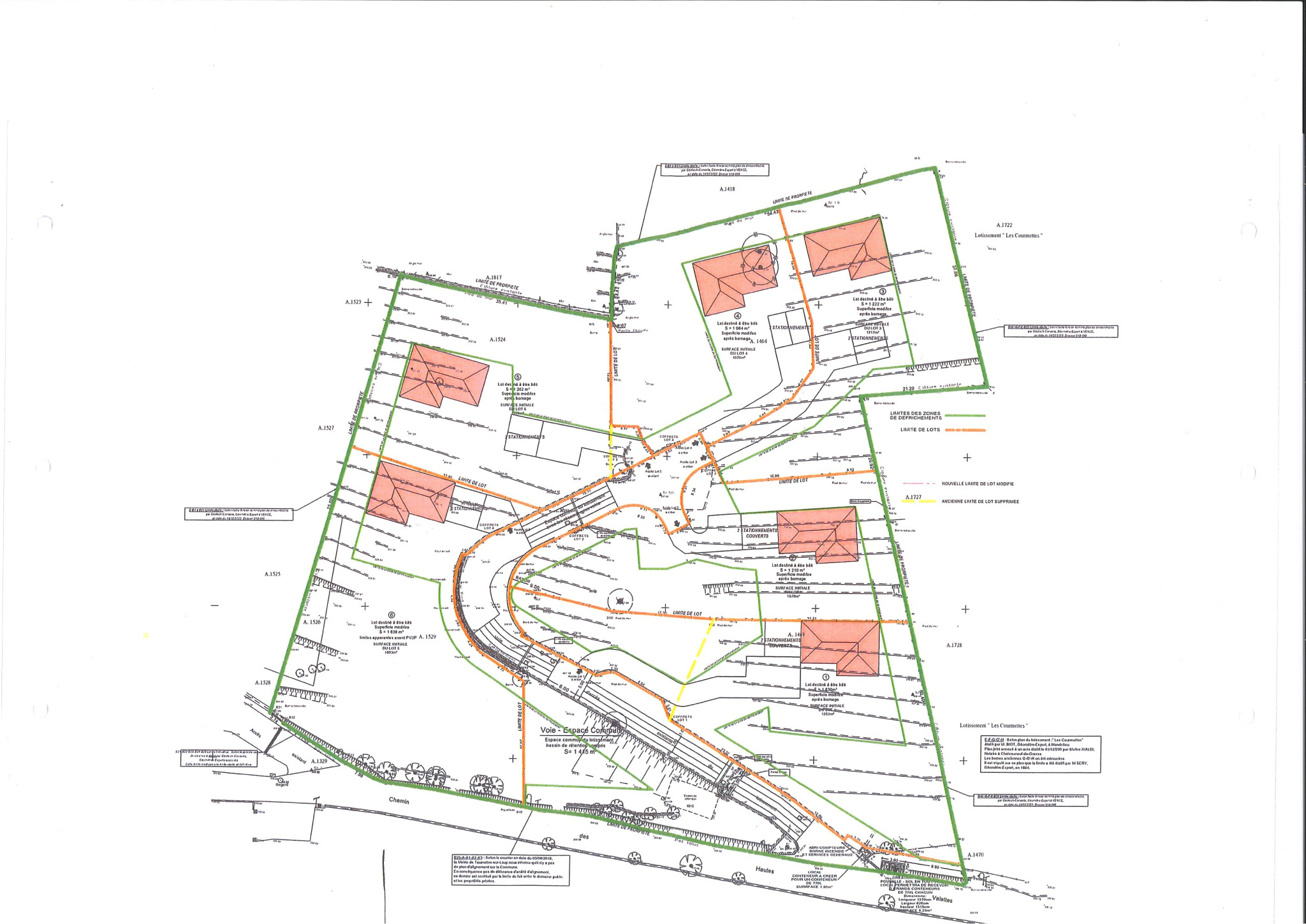
Au sein d'un quartier résidentiel situé sur le haut du quartier des valettes, lotissement comprenant 6 lots entièrement viabilisés.
Superficie des lots comprise entre 1065 m² et 1650 m²
Terrains en restanques.
Position dominante avec vue trés dégagée.
A Partir de 295.000 euros
Descriptif du bien
- Code postal : 06140
- surface terrain : 1 200 m²
- Terrain constructible : OUI
- Quartier : TOURRETTES OUEST
- Terrain Viabilisé : OUI
- Copropriété : OUI
- nombre de lots : 6
- plan de sauvegarde : NON
- Prix de vente honoraires TTC inclus : 295 000 €
La ville de Tourrettes-sur-Loup (06140)
Ce bien vous intéresse ?
Partager l'offre
Nous Contacter
Afficher le téléphone 04 93 24 14 58Les informations recueillies sur ce formulaire sont enregistrées dans un fichier informatisé par La Boite Immo agissant comme Sous-traitant du traitement pour la gestion de la clientèle/prospects de l'Agence / du Réseau qui reste Responsable du Traitement de vos Données personnelles.
La base légale du traitement repose sur l'intérêt légitime de l'Agence / du Réseau.
Elles sont conservées jusqu'à demande de suppression et sont destinées à l'Agence / au Réseau.
Conformément à la loi « informatique et libertés », vous disposez des droits d’accès, de rectification, d’effacement, d’opposition, de limitation et de portabilité de vos données. Vous pouvez retirer votre consentement à tout moment en contactant directement l’Agence / Le Réseau.
Consultez le site https://cnil.fr/fr pour plus d’informations sur vos droits.
Si vous estimez, après avoir contacté l'Agence / le Réseau, que vos droits « Informatique et Libertés » ne sont pas respectés, vous pouvez adresser une réclamation à la CNIL.
Nous vous informons de l’existence de la liste d'opposition au démarchage téléphonique « Bloctel », sur laquelle vous pouvez vous inscrire ici : https://www.bloctel.gouv.fr
Dans le cadre de la protection des Données personnelles, nous vous invitons à ne pas inscrire de Données sensibles dans le champ de saisie libre.
Ce site est protégé par reCAPTCHA, les Politiques de Confidentialité et les Conditions d'Utilisation de Google s'appliquent.


