- Accueil
- Vente
- Alpes maritimes
- Vence
- VENCE centre ville. Appartement à rénover. Parking sous-sol. Idéal Investisseur.
Référence : 1846
Calculette
Partager
VENCE centre ville. Appartement à rénover. Parking sous-sol. Idéal Investisseur.
Description de l'offre
SOUS OFFRE // Opportunité unique en plein cœur de ville ! Découvrez cette ancienne loge de gardien à rénover entièrement, offrant un potentiel exceptionnel pour créer votre espace de vie idéal ou un investissement locatif attractif.
Située au sein d'une résidence de centre-ville, cette loge bénéficie d'un emplacement privilégié, à proximité immédiate de toutes les commodités, des commerces et des transports en commun.
Ce bien rare comprend également un parking en sous-sol, un atout majeur en centre-ville.
Imaginez les possibilités offertes par ce volume à transformer selon vos envies : studio cosy, petit appartement fonctionnel ou bureau indépendant.
Les informations sur les risques auxquels ce bien est exposé sont disponibles sur le site Géorisques
Descriptif du bien
- Code postal : 06140
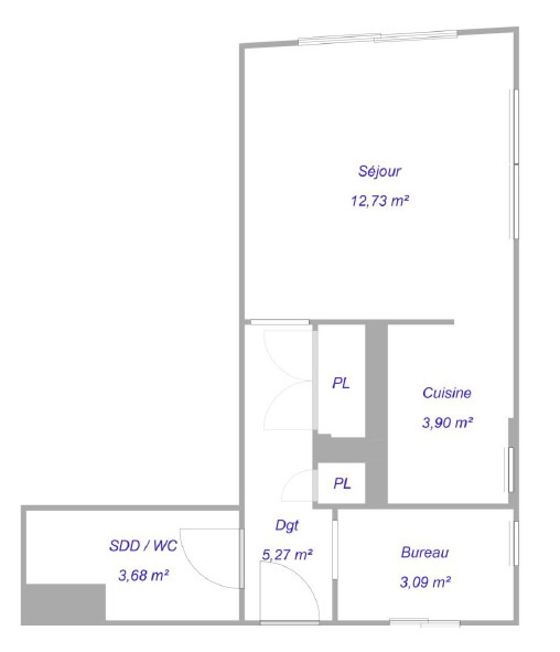
- Surface habitable (m²) : 28,67 m²
- Surface loi Carrez (m²) : 28,67 m²
- Nombre de pièces : 1
- Ascenseur : NON
- Vue : Citadine
- Nb de salle d'eau : 1
- Cuisine : SEPAREE
- Mode de chauffage : Gaz
- Type de chauffage : TRAD_TYPE_CHAUFF_CHAUDIERE
- Format de chauffage : Collectif
- Balcon : NON
- Terrasse : NON
- Murs mitoyens : 1
- Cave : NON
- Exposition : OUEST
- Année de construction : 1965
- Copropriété : OUI
- plan de sauvegarde : NON
- Prix de vente : 106 000 €
- Les honoraires d'agence seront intégralement à la charge du vendeur
Montant estimé des dépenses annuelles d'énergie pour un usage standard est compris entre 880 € et 1 120 € . Prix moyens des énergies indexés sur les années 2021, 2022 et 2023 (abonnements compris).
La ville de Vence (06140)
Ce bien vous intéresse ?
Partager l'offre
Nous Contacter
Afficher le téléphone 04 93 24 14 58Les informations recueillies sur ce formulaire sont enregistrées dans un fichier informatisé par La Boite Immo agissant comme Sous-traitant du traitement pour la gestion de la clientèle/prospects de l'Agence / du Réseau qui reste Responsable du Traitement de vos Données personnelles.
La base légale du traitement repose sur l’intérêt légitime de l'Agence / du Réseau.
Elles sont conservées jusqu'à demande de suppression et sont destinées à l'Agence / au Réseau.
Conformément à la loi « informatique et libertés », vous pouvez exercer votre droit d'accès aux données vous concernant et les faire rectifier en contactant l'Agence / le Réseau.
Si vous estimez, après avoir contacté l'Agence / le Réseau, que vos droits « Informatique et Libertés » ne sont pas respectés, vous pouvez adresser une réclamation à la CNIL.
Nous vous informons de l’existence de la liste d'opposition au démarchage téléphonique « Bloctel », sur laquelle vous pouvez vous inscrire ici : https://www.bloctel.gouv.fr
Dans le cadre de la protection des Données personnelles, nous vous invitons à ne pas inscrire de Données sensibles dans le champ de saisie libre
Ce site est protégé par reCAPTCHA, les Politiques de Confidentialité et les Conditions d'Utilisation de Google s'appliquent.


