- Accueil
- Vente
- Alpes maritimes
- Vence
- VENCE - Appartement 3P avec terrasse et caves, au coeur du Centre Ville
Référence : 1882
Calculette
Partager
VENCE - Appartement 3P avec terrasse et caves, au coeur du Centre Ville
Description de l'offre
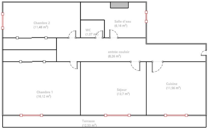
SOUS COMPROMIS // VENCE - BEAUCOUP DE POTENTIEL pour cet appartement 3P de 68m2, située dans une rue piétonne, au calme, à deux pas de toutes les commodités.
Il se compose d'une entrée, d"un séjour lumineux, d'une cuisine indépendante, de deux chambres avec placard, une salle d'eau et un WC indépendant.
Terrasse de 12m2, exposée SUD-EST.
Cave en sous-sol.
Appartement situé dans une copropriété de 10 lots totaux - Quote-part annuelle de charges : 469,32€
Descriptif du bien
- Code postal : 06140
- Surface habitable (m²) : 68,35 m²
- Surface loi Carrez (m²) : 68,35 m²
- Nombre de chambre(s) : 2
- Nombre de pièces : 3
- Vue : Citadine
- Nb de salle d'eau : 1
- Cuisine : SEPAREE
- Mode de chauffage : Fioul
- Type de chauffage : TRAD_TYPE_CHAUFF_CHAUDIERE
- Format de chauffage : Individuel
- Terrasse : OUI
- Cave : OUI
- Exposition : SUD-EST
- Année de construction : 1969
- Copropriété : OUI
- Lot n° : 01-02-07
- nombre de lots : 10
- Quote Part annuelle des charges : 470 €
- Prix de vente : 190 000 €
- Les honoraires d'agence seront intégralement à la charge du vendeur
- Charges : 59 €
- Taxe foncière annuelle : 1 049 €
Montant estimé des dépenses annuelles d'énergie pour un usage standard est compris entre 1 990 € et 2 740 € . Prix moyens des énergies indexés sur les années 2021, 2022 et 2023 (abonnements compris).
La ville de Vence (06140)
Ce bien vous intéresse ?
Partager l'offre
Nous Contacter
Afficher le téléphone 04 93 24 14 58Les informations recueillies sur ce formulaire sont enregistrées dans un fichier informatisé par La Boite Immo agissant comme Sous-traitant du traitement pour la gestion de la clientèle/prospects de l'Agence / du Réseau qui reste Responsable du Traitement de vos Données personnelles.
La base légale du traitement repose sur l'intérêt légitime de l'Agence / du Réseau.
Elles sont conservées jusqu'à demande de suppression et sont destinées à l'Agence / au Réseau.
Conformément à la loi « informatique et libertés », vous disposez des droits d’accès, de rectification, d’effacement, d’opposition, de limitation et de portabilité de vos données. Vous pouvez retirer votre consentement à tout moment en contactant directement l’Agence / Le Réseau.
Consultez le site https://cnil.fr/fr pour plus d’informations sur vos droits.
Si vous estimez, après avoir contacté l'Agence / le Réseau, que vos droits « Informatique et Libertés » ne sont pas respectés, vous pouvez adresser une réclamation à la CNIL.
Nous vous informons de l’existence de la liste d'opposition au démarchage téléphonique « Bloctel », sur laquelle vous pouvez vous inscrire ici : https://www.bloctel.gouv.fr
Dans le cadre de la protection des Données personnelles, nous vous invitons à ne pas inscrire de Données sensibles dans le champ de saisie libre.
Ce site est protégé par reCAPTCHA, les Politiques de Confidentialité et les Conditions d'Utilisation de Google s'appliquent.


